24小時服務熱線
0523-88155521
138-0142-0013?

Product Center
------------
聯系電話
------------
0523-88155521
138-0142-0013?

2.產品代號標注
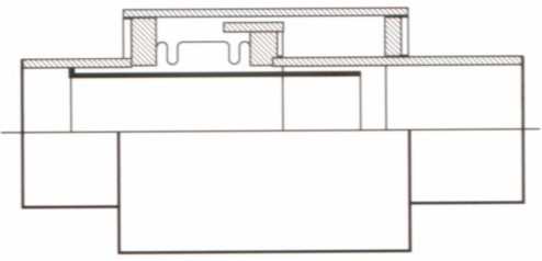
3.使用無約束型波紋補償器的支架布置
4.無約束型波紋補償器使用說明
”無約束”是因以往的軸向型膨脹節對使用有較多約束條件得名的。它完全消除了以往軸向型膨脹節對導向支架間距的L1≤4D,L≤4D和L3的要求。我公司生產的無約束型膨脹節己實現了管架間距“無約束”的最后目標。
無約束膨脹節不僅具有柱狀穩定性,還具有自導向能力。所以它完全消除4D、14D、L3的約束,克服安裝誤差,體積小,安全可靠的特點,可以消除以往軸向型膨脹節易發生的扭彎和失穩等常見病,并對管道保溫也帶來了很大的方便。
無約束型膨脹節在固定支架間距的確定和固定支座推力計算和普通的軸向型膨脹節完全相同。為了使工程穩定可靠,無約束型膨脹節除要求靠近固定支架安裝外,仍要求每個固定支架間距內設三個導向支架。
無約束型膨脹節可應用于管道的架空、地溝嘉設,也可應用于有補償的直埋敷設,此時膨脹節處應設檢查井或暗室。

注:設計口徑150-2000另行設計,也可根據用戶要求或其它標注供貨。

地址:
電話:138-0142-0013? 181-1596-9597
傳真:0523-88155521
郵箱:jstzty999@163.com
您可以掃描左側二維碼
添加我為好友
微信:江蘇天煜
*廣告詞說明:本網站介紹上顯示的廣告法規定極限(錯別字是為避免廣告法排查工具誤導)詞,只在本網站范圍內對比,且僅作為產品內容介紹使用,非廣告宣傳用語!*
*本站相關網頁素材及相關資源部分來源互聯網,如有侵權請速告知,我們將在24小時內刪除*
